欢迎光临南通鑫思源装饰工程有限公司
联系电话:0513-88838698
 苏中尚城
来源: 点击数:6122次 更新时间:2020/3/27 15:40:07
案例介绍Case

 

 

实景分享 ♪
风格 | 现代简约
面积 | 150㎡
小区 | 苏中尚城


设计 | 金李华(鑫思源装饰首席设计师)

 

 

    屋主是一对青年伴侣,从事金融行业,喜静偏宅。最常停留的空间是起居室,读书、看剧、听音乐或者什么也不做,故而希望家中的起居空间可以开阔疏朗,以满足渡过漫长时光的需要。

 

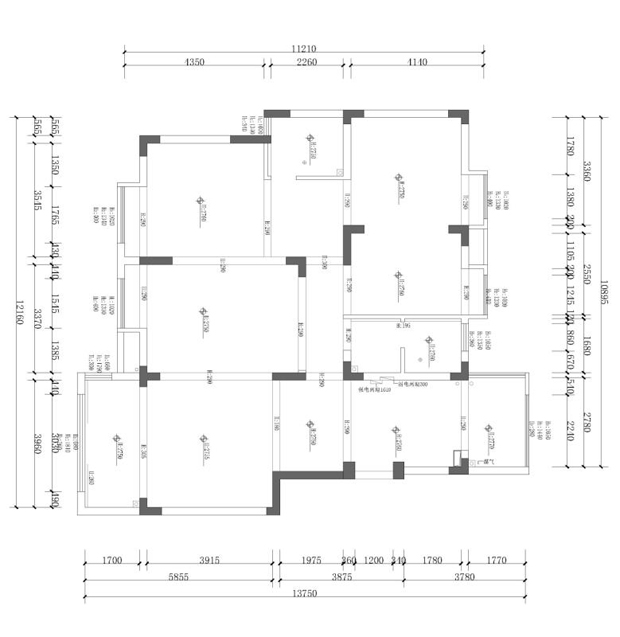
    根据屋主真实的生活习惯,我们对空间进行重新布局分配,形成客厅、餐厨一体的起居空间。以沙发中岛台为核心的大动线,和以客厅大立柜为核心的小动线,打造出空间的自由度,放大视觉效果,并且为空间增添了些有趣的探索感。

 

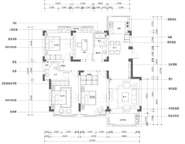
    设计方案

 

    原先室内格局与风格都偏向日式,空间划分较为细碎,隔断较多,起居区的功能分区明确,但空间略显拥挤,全屋总体的储物量也有限。

 

    屋主需求:

    1、平时二人居住,希望尽可能把起居空间做大。

    2、次卧希望能设置为半开放式。

    3、没有使用浴缸的习惯,也不太做饭,对厨房要不高。

 

玄关

 



进人室内,玄关的设计非常特别,镜墙搭配化妆桌、长凳,旁边还有大面积的储物柜。简单、质朴,让人进家门的一瞬间就感到身心愉悦。

 

客厅


 

    客厅有一个壁炉、一台电视机,红白两色的沙发相对摆放,绿色的茶几、灰色的地毯,色调不显华丽,却透出别样的时尚质感。

    最优化起居空间的面积和采光条件,让这里成为整个家中最宜人、最能舒服停留的地方。大块头的地垫式布艺沙发,不仅在黑白灰的关系里尤为重要,而且无比松软塌陷,完全适合屋主的生活方式。

 

 

    电视两边是整排的书架每一行,每一列的大小,都按规律分格,可以储藏各类尺寸的书籍。

 

 

厨房左右两边都有入口,整个动线呈回字形,右边通往是厨房的烹饪区,左边则是吧台。

 

 

餐厅的采光非常好,黑色的木质餐桌搭配八张餐椅,顶部是一套白色的组合吊灯,大小灯泡、高低错落,很好的渲染了氛围。

 

 

衣帽间的面积非常大,淡绿色的柜体与金色拉手搭配。一盏黄铜吊灯做为照明,大量的衣柜,鞋柜,可以满足任何衣服、鞋子、配饰的摆放。

 

 

 

【刷新页面】【加入收藏】【打印此文】 【关闭窗口】
上一篇:海安农村自建房 下一篇:星湖湾140㎡港式

服务热线

0513-88838698


一部地址:海安市奥体尚府西大门(海安体育馆东大门对面)

总部地址:海安市丹凤花苑北大门对面三楼(鑫思源装饰总部)

联系电话: 13358083589 15996596689

联系人:冯总

微信扫一扫联系我们

南通鑫思源装饰工程有限公司 备案号:苏ICP备19026657号-1 技术支持:海安网站建设
关闭

微信扫一扫
扫一扫 联系我们

在线预约